Description
A vendre sur plans 3 villas de 6 pièces au chemin de Malvand 3 à Chambésy, constructions THPE, proche proche de toutes les commodités, hors nuisances, proche du bus et gare, composée comme suit:
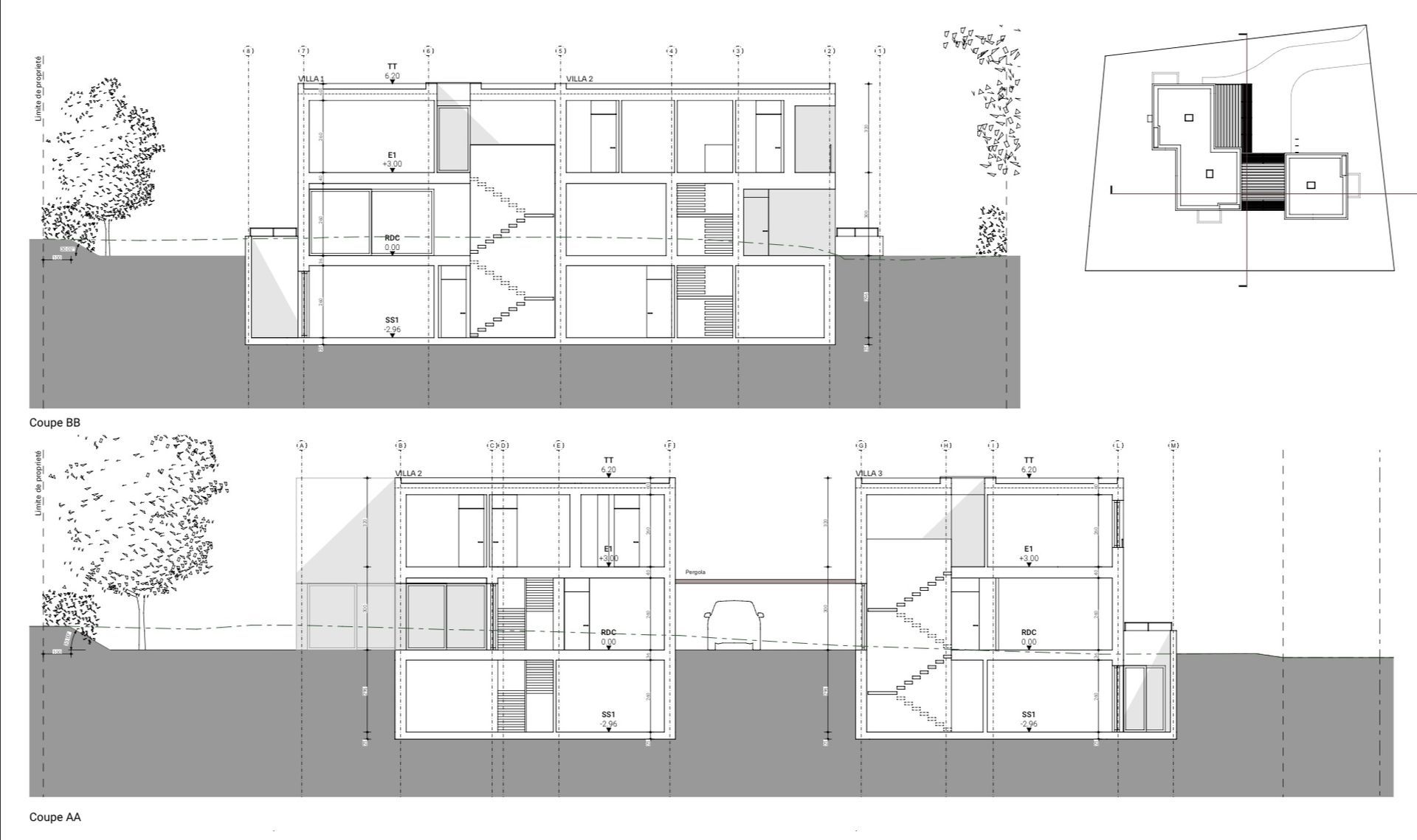
Rez: Salon/salle à manger avec cuisine entièrement équipée, wc visiteurs, penderie
Etage: master-room avec dressing, salle de bains et terrasse, 2 chambres, salle de bains
Sous-sol: salle de sport/jeu, salle de bains, bureau, local technique, buanderie, cave, patio, cave à vin - villa no 1 avec abri
Extérieur: terrasse couverte, jardin arboré et clos, deux places de parkings par villa
Inclus pour les 3 villas:
- place de parking voiture visiteur
- emplacement pour vélos
- dépot extérieur fermé
- vide d'étage y compris pour les sous-sol 260cm.
Je suis le promoteur donc toute négociation se passe avec moi
Photos 3D en cours de création
PRIX DÈS CHF 2'490'000.--





